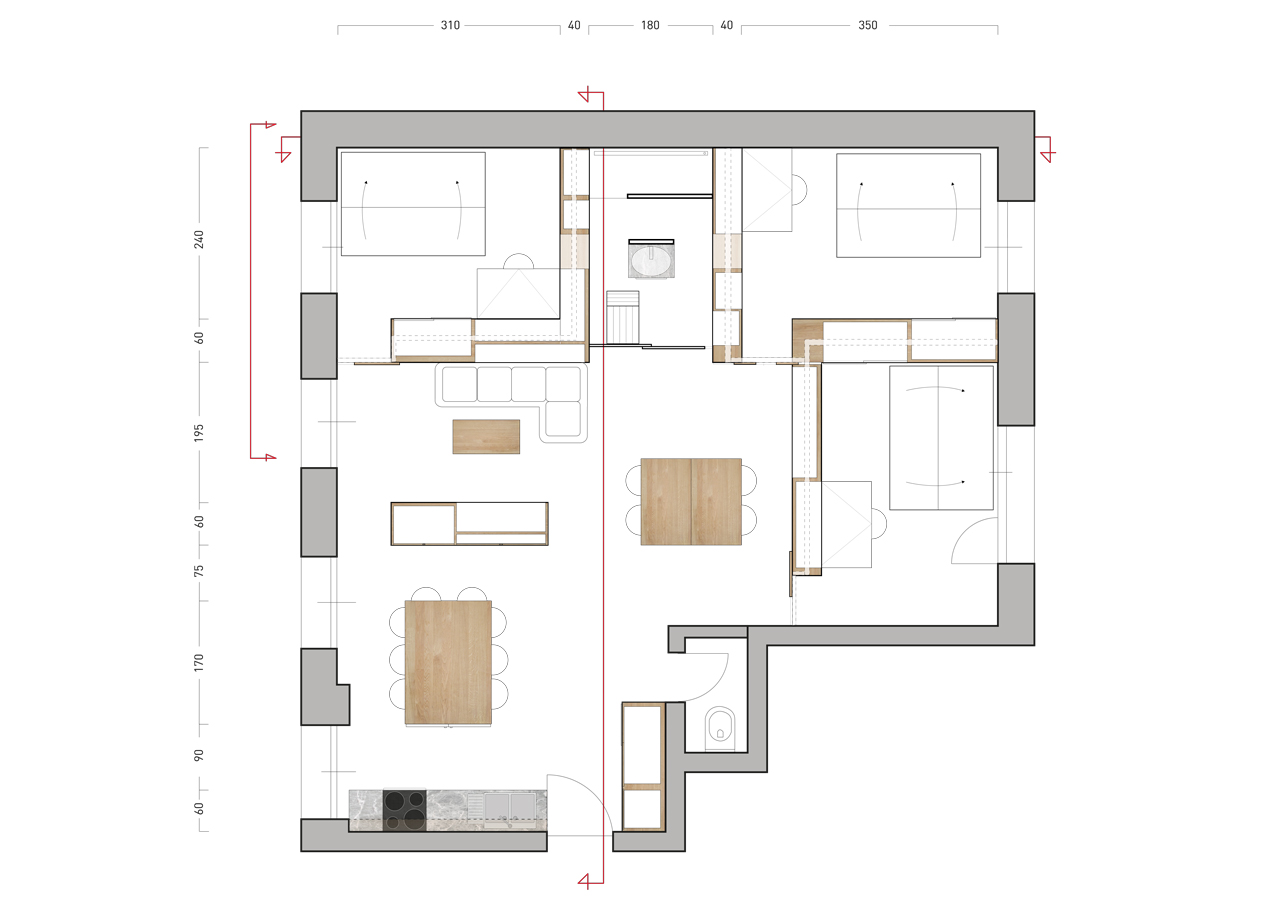
Repenser l’aménagement d’un espace privé. Ici, le but était d’enlever toutes les cloisons et de recréer des espaces de vie grâce à un mobilier structurant et adapté aux usages repérés au préalable. Dans le contexte d’une colocation à trois, dans un appartement aux multiples ouvertures, il a fallu trouver un compromis entre intimité et partage. Ces deux conditions ont été résolues grâce 2 meubles en L qui viennent créer quatre espaces clos, trois chambre et une salle de bain. Le reste de l’espace est donc destiné aux activités communes où l’individualité peut toujours y trouver sa place grâce à un meuble de rangement en son centre, compartimentant les usages, mais en permettant une circulation libre et ininterrompue d’un espace à l’autre. Les espaces chambre bénéficient d’un éclairage personnalisable, permettant de communiquer ses humeurs aux autres habitants.
Ce bandeau lumineux vient créer une ligne de lecture sous les plafonds grâce à des parois transparentes.





Pour plus d'informations, questions ou de simples messages, contactez moi par e-mail à l'adresse suivante alex.varin58@gmail.com . Ou suivez moi sur les réseaux sociaux.